
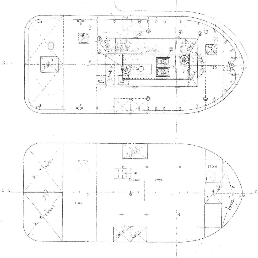
Specifications
AI Vessel Valuation
Estimated Market Value
$80,464
$60,348 - $100,580
Valuation Factors
Built 1995 (31 years old)
Older vessel, depreciation applied
Tonnage: 19 GT
Higher tonnage increases value
* This valuation is an estimate based on market data. Actual prices may vary based on condition and demand.
Price not available for calculation
Premium Services
OptionalEnhance your purchase with professional services for complete peace of mind.
JCI Inspection Report
Certified inspection by JCI-licensed surveyor with detailed condition assessment
Drone Photography
Professional aerial video and photos of hull, deck, and superstructure
Sea Trial Arrangement
Witness engine performance and vessel handling with our coordination
Condition Score Report
Comprehensive A-F grade assessment of hull, engine, and equipment
19 GT Tugboat (1995)
19トン押船 1000馬力 エア掛け プッシャータグ
Similar Vessels You May Like

19 GT Tugboat (1994)
格安19トンプッシャー800psX2基販売 OB/

Tugboat (1994)
H6年SKK150t起重機19トンプッシャー1600ps販売

19 GT Tugboat (1992)
格安販売19トン曳タグ三菱エンジン2基/船価3780万円外税

524.3m Tugboat (1988)
中古艇情報 その他メーカー(国内) 漁船 NO,241123 漁運搬船 養殖イカダ移設TUG船(鋼=18t)1988y