
Specifications
AI Vessel Valuation
Estimated Market Value
$32,308
$24,231 - $40,385
Valuation Factors
Built 1999 (27 years old)
Older vessel, depreciation applied
Tonnage: 19 GT
Higher tonnage increases value
* This valuation is an estimate based on market data. Actual prices may vary based on condition and demand.
Price not available for calculation
Premium Services
OptionalEnhance your purchase with professional services for complete peace of mind.
JCI Inspection Report
Certified inspection by JCI-licensed surveyor with detailed condition assessment
Drone Photography
Professional aerial video and photos of hull, deck, and superstructure
Sea Trial Arrangement
Witness engine performance and vessel handling with our coordination
Condition Score Report
Comprehensive A-F grade assessment of hull, engine, and equipment
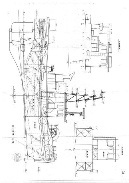
19 GT Passenger Vessel (1999)
=19G/T 1300PS*1 曳航/押航/転錨/交通船/警戒業務船=主機同年製
Similar Vessels You May Like

611 GT Passenger Vessel (1998)
1998年日本製ROPaxフェリー611トン AD/ISI/

19 GT Passenger Vessel (1998)
アルミ客船19トン70人乗り

679.7m Passenger Vessel (1997)
中古艇情報 その他メーカー(国内) 交通艇 NO,040705 交通船 旅客船 三保造船所(軽合金=48t)2基 83名 1997y

19 GT Passenger Vessel (2001)
小型船舶 19トン 平水65名 旅客船 限沿 軽合金【MOマリン】